- 26.05.2015, 08:43
#469434
Hallo,
anbei hab ich einige Bilder meines "Auslegeraufnahmebügels".
Das ist der erste Entwurf, leider kommt bei dieser Ausführug der Führerstand hinten nicht ganz rum. Ohne geschlossene Kabine würde es gehen:

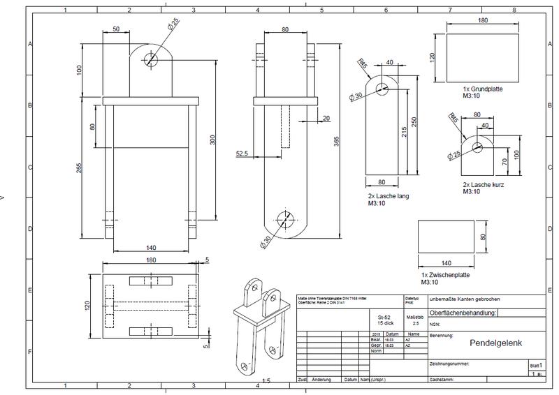
Da die erste Variante nicht funktioniert habe ich mich dann für diesen Entwurf entschieden:



Grüsse,
Torben
anbei hab ich einige Bilder meines "Auslegeraufnahmebügels".
Das ist der erste Entwurf, leider kommt bei dieser Ausführug der Führerstand hinten nicht ganz rum. Ohne geschlossene Kabine würde es gehen:
Da die erste Variante nicht funktioniert habe ich mich dann für diesen Entwurf entschieden:
Grüsse,
Torben


